NEW≫≫東大和市南街1丁目 新築戸建 全1棟 | 東大和市の不動産のことなら【つむぐホーム】
ご予約や事前のご相談など、お気軽にお問合せください
042-516-8883
2026-03-09
NEW≫≫東大和市南街1丁目 新築戸建 全1棟



新着物件追加しました
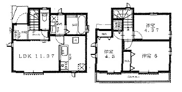
◆南西角地で開放的♪
◆住環境良好なエリア♪
◆小・中学校まで徒歩10分以内で安心♪
🏫 学区 🏫
《小学校》
東大和市立第二小学校
《中学校》
東大和市立第二中学校
お気軽にご予約・ご来店お待ちしております
〚関連リンク〛
◆東大和市市新築戸建◆
◆不動産売却◆
お悩み事も大歓迎!購入も売却も、とことんマメに正直にお手伝いいたします!
当社つむぐホームではお客様の「売りたい」「買いたい」はもちろん、お住まいに関わることであればどんな些細なことでもお手伝い・ご相談をお受けしております。
【モヤモヤゼロを目指します】
お住まいのご売却・ご購入には夢や希望と同じくらい不安や悩みもあるかと思います。その不安や悩み 是非我々にお聞かせください。知らないことも分からないことも、ゆっくり丁寧にアドバイスいたします。
【しっかりお客様に決めてもらいたいから】
当社ではこちらから決めるような・誘導するような営業は一切しません。大切なご決断をしっかりお客様にしていただきたいから、当社はアドバイザーの立場であり続けます。
【地域情報に詳しいアドバイザーがお手伝いいたします】
当社には地域での不動産経験が10年以上のアドバイザーが在籍し、更に当社代表は東大和市生まれの東大和市育ち。地元民ならではの情報力で、物件情報以外のプラスαのお話もさせていただきます。
まずはお気軽に、当社つむぐホームへご相談ください!
*□□*□□**□□**株式会社つむぐホーム**□□**□□*□□*
住まいの「売りたい」「買いたい」を本気で応援!
お住まいにかかわる「ご不安」「お悩み」こそ是非つむぐホームにお話しください!
元気なスタッフが全力でお客様のご希望・ご相談にお応えします♪
ページ作成日 2026-03-09
マメさ・親切さ・正直さでお客様をお迎え。
東大和市周辺の不動産のことならつむぐホームになんでもご相談ください。お待ちしております。
アクセスMAP
-
所在地
〒207-0014
東京都東大和市南街3-2-2 -
営業時間
10:00~
19:00
-
定休日
第1,3火曜日・水曜日
※キッズコーナーございます!お子様連れのお客様もご安心してご来店いただけます。
東大和市の不動産購入・売却サポート
Copyright (C) TSUMUGU HOME All Rights Reserved.











