ご予約や事前のご相談など、お気軽にお問合せください
042-516-8883
| 価格 | 4,280万円値下がり ![]() |
||||
|---|---|---|---|---|---|
| 所在地 | 東京都東村山市多摩湖町2
この地域周辺の物件を見る |
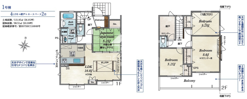
土地面積 | 121.85m² (36.86坪) | 建物面積 | 99.51u |
| 築年月 | 2026年1月築 | 間取り | 4SLDK (-) | ||
| 交通 |
西武多摩湖線 多摩湖 徒歩8分
西武多摩湖線 西武遊園地 徒歩11分 西武多摩湖線 武蔵大和 徒歩12分 |
||||
電話をかける(携帯・PHS可)
042-516-8883
「ホームページを見た」とお伝え下さい。
お問い合わせ番号をお伝えください
RHS-k2724
| 特徴 |
|
|---|---|
| セールスコメント | ●リビングには開放感のある折上天井♪ ●お子様のお昼寝スペースとしても使える和室♪ ●多用途に使える納戸スペース♪ ●2部屋から出入りができる南向きバルコニー♪ |
| 採光面 | 南 | 構造/階数 | 木造/地上2階建 |
|---|---|---|---|
| 建ぺい率 | 50(%) | 容積率 | 100(%) |
| 駐車場 | 有 | 現況/引渡し | -/相談 |
| 土地権利 | 所有権 | 私道負担面積 | - |
| 接道状況 | 接道: 北 公道 道路幅: 7m | 用途地域 |
第二種低層住居専用地域
|
| セットバック | なし | 法令上の制限 | - |
| 地目 | 宅地 | 地勢 | |
| 建築確認番号 | 第R07SHC116868号 | 都市計画 | 市街化区域 |
| 取引態様 | 仲介 | ||
| 備考 | - | ||
| 情報更新日 | 2026年02月12日 | 次回更新日 | 2026年02月26日 |
| 小学校区 | 東村山市立回田小学校 (東京都東村山市) この学区の他の物件を見る |
中学校区 | 東村山第四中学校 (東京都東村山市) この学区の他の物件を見る |
|---|
電話をかける(携帯・PHS可)
042-516-8883
「ホームページを見た」とお伝え下さい。
お問い合わせ番号をお伝えください
RHS-k2724
| 価格 | 万円 | ||
|---|---|---|---|
| 年利率 | % |
||
| ボーナス払い | 返済年数 | ||
| 頭金 | 直接入力する | 万円 | |

毎月のご返済額 |
ボーナス(×年2回) |
物件価格4,280万円 |
電話をかける(携帯・PHS可)
042-516-8883
「ホームページを見た」とお伝え下さい。
お問い合わせ番号をお伝えください
RHS-k2724
マメさ・親切さ・正直さでお客様をお迎え。
東大和市周辺の不動産のことならつむぐホームになんでもご相談ください。お待ちしております。
所在地
〒207-0014
東京都東大和市南街3-2-2
営業時間
10:00〜
19:00
定休日
第1,3火曜日・水曜日
※キッズコーナーございます!お子様連れのお客様もご安心してご来店いただけます。
東大和市の不動産購入・売却サポート
Copyright (C) TSUMUGU HOME All Rights Reserved.
●西武多摩湖線・山口線「多摩湖」駅徒歩8分
●小学校まで徒歩9分、中学校まで徒歩10分
●カースペース2台(車種による)