ご予約や事前のご相談など、お気軽にお問合せください
042-516-8883
| 価格 | 3,680万円 ![]() |
||||
|---|---|---|---|---|---|
| 所在地 | 東京都武蔵村山市残堀1
この地域周辺の物件を見る |
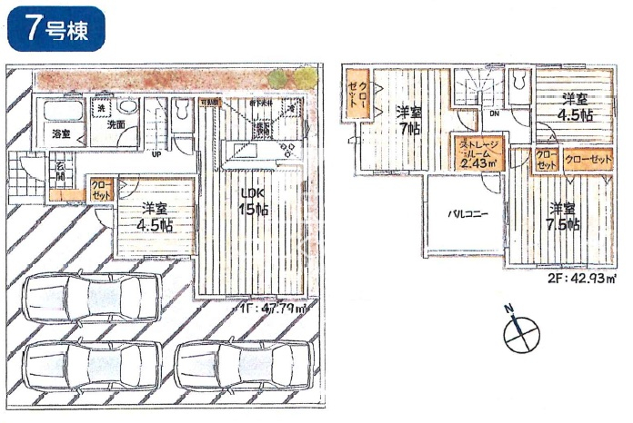
土地面積 | 120.02m² (36.31坪) | 建物面積 | 90.72u |
| 築年月 | 2026年3月築 | 間取り | 4LDK (-) | ||
| 交通 |
JR中央本線 立川 見晴橋 バス40分 停歩5分
|
||||
電話をかける(携帯・PHS可)
042-516-8883
「ホームページを見た」とお伝え下さい。
お問い合わせ番号をお伝えください
RHS-k2658
| 特徴 |
|
|---|---|
| セールスコメント | ●多用途に使えるストレージルーム♪ ●パントリーやWIC等収納豊富♪ ●個室にもリビングの続き間としても使える洋室♪ ●広々とした南向きバルコニー♪ |
| 採光面 | 南 | 構造/階数 | 木造/地上2階建 |
|---|---|---|---|
| 建ぺい率 | 40(%) | 容積率 | 80(%) |
| 駐車場 | 有 | 現況/引渡し | 建築中/相談 |
| 土地権利 | 所有権 | 私道負担面積 | なし |
| 接道状況 | 接道: 西 公道 道路幅: 4.5m | 用途地域 |
第一種低層住居専用地域
|
| セットバック | なし | 法令上の制限 | ●第一種高度地区 ●準防火地域 |
| 地目 | 宅地 | 地勢 | |
| 建築確認番号 | 第25UDI1W建07570号 | 都市計画 | 市街化区域 |
| 取引態様 | 仲介 | ||
| 備考 | - | ||
| 情報更新日 | 2025年12月18日 | 次回更新日 | 2026年01月01日 |
| 小学校区 | 武蔵村山市立第八小学校 (東京都武蔵村山市) この学区の他の物件を見る |
中学校区 | 第五中学校 (東京都武蔵村山市) この学区の他の物件を見る |
|---|
電話をかける(携帯・PHS可)
042-516-8883
「ホームページを見た」とお伝え下さい。
お問い合わせ番号をお伝えください
RHS-k2658
| 価格 | 万円 | ||
|---|---|---|---|
| 年利率 | % |
||
| ボーナス払い | 返済年数 | ||
| 頭金 | 直接入力する | 万円 | |

毎月のご返済額 |
ボーナス(×年2回) |
物件価格3,680万円 |
![]() |
![]() |
武蔵村山市残堀1
3680万円〜3880万円 |
電話をかける(携帯・PHS可)
042-516-8883
「ホームページを見た」とお伝え下さい。
お問い合わせ番号をお伝えください
RHS-k2658
マメさ・親切さ・正直さでお客様をお迎え。
東大和市周辺の不動産のことならつむぐホームになんでもご相談ください。お待ちしております。
所在地
〒207-0014
東京都東大和市南街3-2-2
営業時間
10:00〜
19:00
定休日
第1,3火曜日・水曜日
※キッズコーナーございます!お子様連れのお客様もご安心してご来店いただけます。
東大和市の不動産購入・売却サポート
Copyright (C) TSUMUGU HOME All Rights Reserved.
●JR中央線「立川」駅バス40分「見晴橋」停歩5分
●小学校まで徒歩5分の立地♪
●全居室2面採光の為陽当たり良好♪
●カースペース3台(車種による)