ご予約や事前のご相談など、お気軽にお問合せください
042-516-8883
| 価格 | 5,899万円 ![]() |
||||
|---|---|---|---|---|---|
| 所在地 | 東京都小平市小川町1
この地域周辺の物件を見る |
土地面積 | 110m² (33.28坪) | 建物面積 | 87.96u |
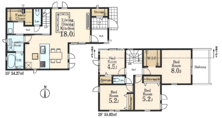
| 築年月 | 2026年5月築 | 間取り | 3SLDK (-) | ||
| 交通 |
西武拝島線 東大和市 徒歩14分
|
||||
電話をかける(携帯・PHS可)
042-516-8883
「ホームページを見た」とお伝え下さい。
お問い合わせ番号をお伝えください
RHS-T986
| 特徴 |
|
|---|---|
| セールスコメント | ≪Point≫ ◆3SLDK ◆WIC ◆床暖房 ◆パントリー ◆納戸 ◆全居室収納 ◆食器洗浄乾燥機 ◆南側バルコニー ◆駐車並列2台可能(車種による) ◆整形地 |
| 採光面 | 南 | 構造/階数 | 木造/地上2階建 |
|---|---|---|---|
| 建ぺい率 | 40(%) | 容積率 | 80(%) |
| 駐車場 | - | 現況/引渡し | 建築中/相談 |
| 土地権利 | 所有権 | 私道負担面積 | なし |
| 接道状況 | 接道: 西 公道 道路幅: 5m | 用途地域 |
第一種低層住居専用地域
|
| セットバック | なし | 法令上の制限 | ●第1種高度地区 ●第22条区域 |
| 地目 | 宅地 | 地勢 | |
| 建築確認番号 | 第25UDI1W建11853号 | 都市計画 | 市街化区域 |
| 取引態様 | 仲介 | ||
| 備考 | - | ||
| 情報更新日 | 2026年04月17日 | 次回更新日 | 2026年05月01日 |
| 小学校区 | 小平市立小平第十二小学校 (東京都小平市) この学区の他の物件を見る |
中学校区 | 小平第五中学校 (東京都小平市) この学区の他の物件を見る |
|---|
電話をかける(携帯・PHS可)
042-516-8883
「ホームページを見た」とお伝え下さい。
お問い合わせ番号をお伝えください
RHS-T986
| 価格 | 万円 | ||
|---|---|---|---|
| 年利率 | % |
||
| ボーナス払い | 返済年数 | ||
| 頭金 | 直接入力する | 万円 | |

毎月のご返済額 |
ボーナス(×年2回) |
物件価格5,899万円 |
電話をかける(携帯・PHS可)
042-516-8883
「ホームページを見た」とお伝え下さい。
お問い合わせ番号をお伝えください
RHS-T986
マメさ・親切さ・正直さでお客様をお迎え。
東大和市周辺の不動産のことならつむぐホームになんでもご相談ください。お待ちしております。
所在地
〒207-0014
東京都東大和市南街3-2-2
営業時間
10:00〜
19:00
定休日
第1,3火曜日・水曜日
※キッズコーナーございます!お子様連れのお客様もご安心してご来店いただけます。
東大和市の不動産購入・売却サポート
Copyright (C) TSUMUGU HOME All Rights Reserved.
最寄り駅・小学校まで徒歩圏内♪♪
開発分譲地なので街並みがキレイです♪♪
◎西武拝島線「東大和市」駅徒歩14分◎